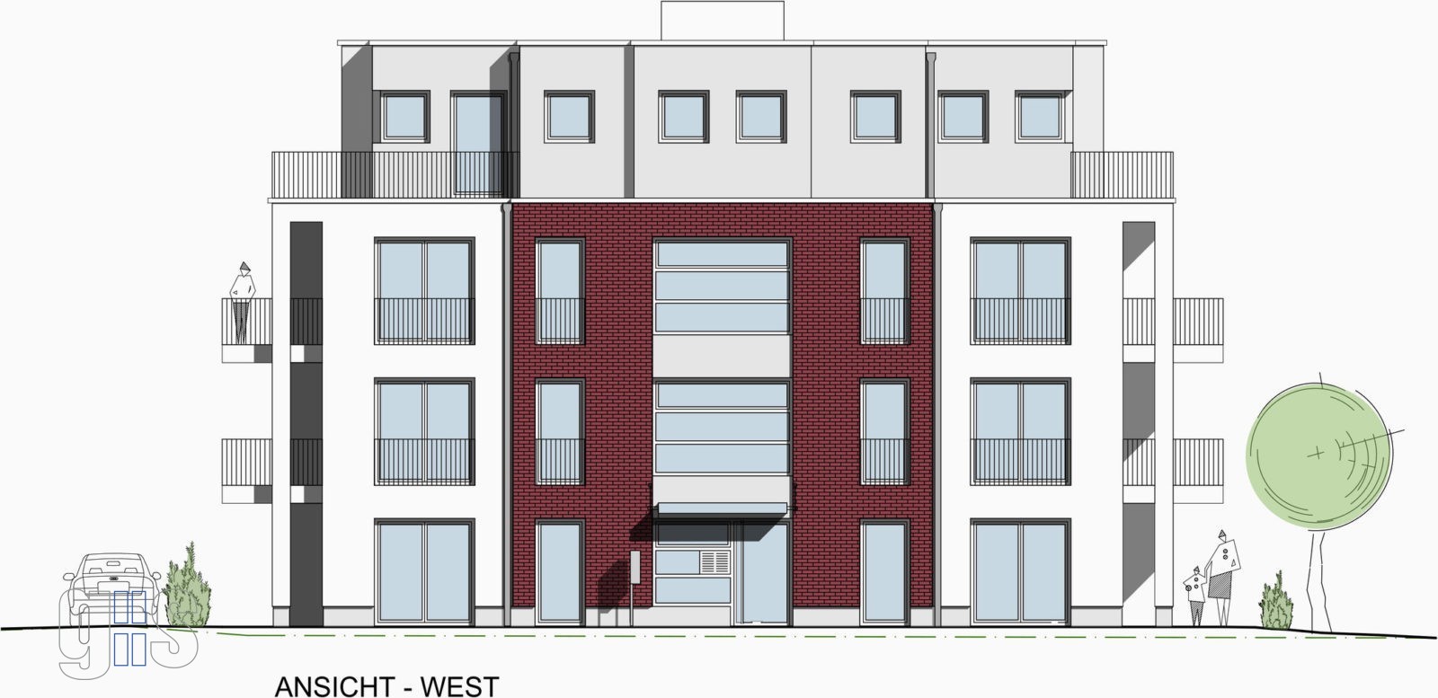
In der Roncallistraße im Troisdorfer Stadtteil Friedrich-Wilhelms-Hütte entsteht ein modernes Neubauprojekt mit drei Geschossen und einem Staffelgeschoß. Das Objekt besteht aus 15 Wohnungen, deren Beheizung über eine Wärmepumpe als bivalentes Heizsystem erfolgt, und die den aktuellsten energetischen Standard nach gültiger Energieeinsparverordnung (ENEV) vorweisen. Die Wohnungen sind hochwertig ausgestattet und verfügen über eine Fußbodenheizung und große Balkone bzw. Dachterrassen. Im Treppenhaus befindet sich ein Aufzug. Auf dem Grundstück steht für jede Wohnpartei jeweils ein oberirdischer KFZ-Stellplatz zur Verfügung.
Die 2- bis 4-Zimmer-Wohnungen mit einer Wohnfläche zwischen 52 und 91 m² werden zur Miete angeboten.
Der Stadtteil Friedrich-Wilhelms-Hütte in Troisdorf bietet eine hervorragende Infrastruktur mit einer perfekten Verkehrsanbindung. Er befindet sich in unmittelbarer Nähe zur Troisdorfer Innenstadt und verschafft somit dem attraktiven Neubau eine hohe Wohnqualität. Sie finden mehrere Einkaufsmöglichkeiten für den täglichen Bedarf, eine Schule sowie einen Kindergarten in der direkten Nachbarschaft.
Der Flughafen Köln/Bonn ist mit der S-Bahn in 7 Minuten schnell und leicht zu erreichen. Zur Flughafenverbindung über die Autobahn (A565) gelangen Sie sogar in nicht mehr als zwei Autominuten.
Bildergalerie
Projektpartner
Architektur und Bauleitung
Architekt Joachim Kneutgen
Pf.-Kenntemich-Platz 2
D-53840 Troisdorf
Telefon: 02241 88 43-0
Fax: 02241 88 43-30
Mail: info@kneutgen.de
Web: http://www.kneutgen.de/
Finanzierung
Kreissparkasse Köln
Kreissparkasse Köln
Neumarkt 18-24
50667 Köln


